JAY D'ABRAMO
Refine Search

5130 Lazy Oaks Drive , Unit 5130, Winter Park, FL 32792

$245,000
  • 5130 Lazy Oaks Drive , Unit 5130, Winter Park, FL 32792 Main Photo

31 Total Photos [Click to View All]

New to the Market Active
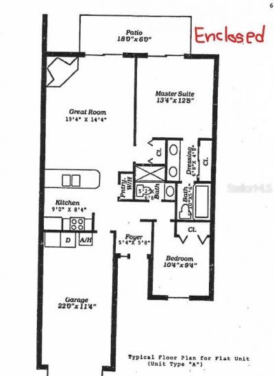
BEDS2 BATHS2 full SQUARE FEET1,008 MLS#O6386224
STATUSActive PROPERTY TYPEResidential - Condominium SUBDIVISIONLAZY OAKS CONDO

Property Description

Spacious 2-bedroom unit offering 1,008 sq ft plus a 16x8 enclosed Florida room and a one-car garage, presenting a great opportunity for an investor or buyer ready to add value. The unit has been professionally cleaned, and following a water heater failure, ServPro inspected and addressed the area-no severe damage reported. As a result, baseboards have been removed throughout, and carpet has been removed from both bedrooms, leaving bare concrete and a blank slate for new flooring. The home features vaulted ceilings in the living and dining areas, a large welcoming foyer, and a functional kitchen with pantry and dual lazy Susan cabinets. Major components include a 2023 roof, 2025 water heater,2010 A/C, poly piping, and a Gould-brand electrical panel. HOA covers roof, exterior maintenance, termite bond, and pest control; buyer approval is required. Recent comparable sales support strong potential-bring your vision and make this one your own.

5130 Lazy Oaks Drive , Unit 5130 | MLS# O6386224

This condo located at 5130 Lazy Oaks Drive , Unit 5130, Winter Park, FL 32792 is currently listed for sale with an asking price of $245,000. This property was built in 1982 and has 2 bedrooms and 2 full baths with 1008 sq. ft. Lazy Oaks Drive , Unit 5130 is located in the LAZY OAKS CONDO subdivision. Search LAZY OAKS CONDO real estate on www.jaydabramo.com today.

Property Features

Property Type: Residential - Condominium
Cooling: Central Air
Garage: 1 car attached
Heating: Central
Lot Size: 0.04 Acres
Roof Type: Shingle
Stories: 1.0
Taxes: $749
Year Built: 1982

Amenities

Ceiling Fans(s)
High Ceilings
Living Room/Dining Room Combo
Primary Bedroom Main Floor
Solid Surface Counters
Split Bedroom
Thermostat
Vaulted Ceiling(s)
Window Treatments
Private Mailbox
Rain Gutters

Feature Descriptions

Accessibility Features: Grip-Accessible Features
Appliances: Dishwasher, Disposal, Electric Water Heater, Kitchen Reverse Osmosis System, Microwave, Range, Refrigerator
Community Features: Buyer Approval Required, Deed Restrictions, Street Lights
Directions: Head West on Aloma, Turn RIGHT on Old Howell Branch Rd, Turn left into the community and onto Lazy Oaks Drive. VeerRight at the stop sign and unit is on the RIGHT.
Exterior: Block, Brick
Fireplace: Family Room, Wood Burning
Fireplace Y/N: Yes
Flood Zone Code: X
Flooring: Ceramic Tile, Concrete
Foundation: Slab
Garage Dimensions: 11x18
HOA Fee: 277/ Monthly
HOA Y/N: Yes
Home Warranty Y/N: No
Listing Terms: Cash, Conventional
Lot: In County, Landscaped, Paved
Lot Dimensions: 0.04
Number of Pets: 2
Other Equipment: Irrigation Equipment
Ownership: Condominium
Parking: Parking Pad
Parking Notes: Parking Pad
Pets Allowed: Breed Restrictions, Yes
Pets Restrictions: See Rules and Regulations (attached)
Property Attached Y/N: No
Property Sub-Type: Condominium
Sewer: Public Sewer
Showing Instructions: Sentri Lock Box, ShowingTime
Special Sale Provisions: Probate Listing
Utilities: Electricity Available, Fire Hydrant, Water Connected
Water: Public
Water Access Y/N: No
Zoning: R-3A

Room Sizes

Primary Bedroom: 12x12
Bedroom 2: 9x9
Kitchen: 8x9
Great Room: 14x17
Florida Room: 16x7
Foyer: 5x8

Listed By / Shown By

Listed By

Agency Name: PRESTIGE PROPERTY SHOP LLC
Agency Contact: 407-331-8000

Shown By

Agent Name: Jay D'Abramo
Agent Phone: (813) 210-7333
Agency Title: Florida Executive Realty

IDX logo

Estimate Your Payment

Estimated Payment

$ 679.14 per month $545.26 Principal & Interest $62.42 Property Tax $71.46 Homeowner's Insurance

Change Payment Information

%
years/fixed
yearly
yearly (est.)
(Payments are an estimate and may vary by lender)

Login to My Homefinder

Pixel